СТЦ Н 622

Обрабатывающий центр СТЦ Н 622 предназначен для комплексной обработки сложных корпусных деталей из черных и цветных металлов в условиях мелкосерийного и серийного производства, включая операции: сверления и растачивания точных отверстий по точным координатам, фрезерования поверхностей по контуру с линейной и круговой интерполяцией, нарезания резьбы метчиками и фрезами, протачивания отверстий больших диаметров и канавок с помощью планшайбы и других операций, выполняемых с помощью навесных фрезерных головок

Обрабатывающий центр СТЦ Н 622 станок ЧПУ
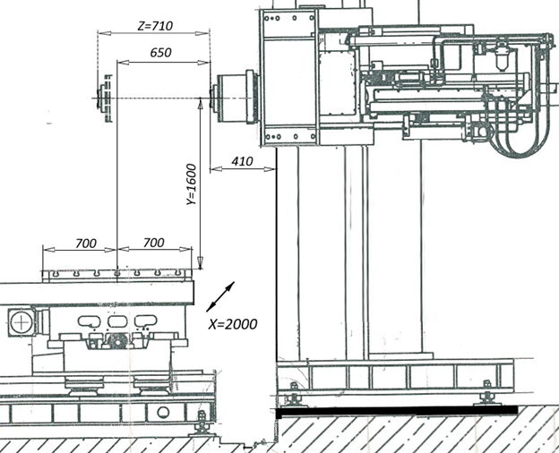
Рабочая зона станка габариты

Рабочая зона

Несущие элементы станка выполнены литыми из чугуна. Его структура обеспечивает высокую жесткость конструкции станка и высокую точность обработки. Конструкция коробчатого типа гарантирует обеспечение заданных характеристик точности даже при тяжелых режимах резания.
Стойка выполнена неподвижной. На лицевой стороне установлены линейные направляющие скольжения из фторопласта отечественного производства, обеспечивающие высокоскоростное и точное перемещение саней шпиндельной бабки. Стойка жестко крепится к литому основанию коробчатой формы, которое через клиновые опоры устанавливается на фундамент.
С одной стороны стойки расположены привод подачи шпиндельной бабки и каретка по которой перемещается манипулятор. Шпиндельная бабка вертикально перемещается по направляющим стойки (ось Y), представляет собой литой корпус. С противоположной стороны на основание и стойку крепится инструментальный магазин автоматической смены инструмента.
Внутри стойки перемещается груз устройства уравновешивания шпиндельной бабки

СТОЛ

Стол включает в себя нижние сани, верхние сани и плиту поворотную.
Нижние сани стола крепятся к каретке и вместе с ней по станине стола и перемещаются на роликовых опорах качения в горизонтальном направлении (ось W), продольном оси шпинделя.
Верхние сани перемещаются по нижним саням на роликовых опорах качения в горизонтальном направлении (ось Х), поперечным оси шпинделя.
Плита поворотная вращается по кольцевым направляющим саней, выполненным из полимерного антифрикционного материала. Верхняя часть имеет плоскую шлифованную рабочую поверхность с Т- образными пазами.
Центральный паз калиброванный.
Фиксация поворотной части стола осуществляется 4 зажимами. Отжим - гидравлический.
Поворот стола (ось В) осуществляется двумя планетарными редукторами через передачу с наружным зубчатым зацеплением.
В верхней части саней стола установлен круговой оптический датчик

Размер стандартного стола: 1400x1600 мм
Возможны опциональные исполнения размерами 1250х1400 и 1100х1250 мм

схема стола станка
ШПИНДЕЛЬ

ШПИНДЕЛЬ

Шпиндельная бабка включает в себя главный привод, шпиндельное устройство, привод подачи шпинделя.
Главный привод представляет собой двухступенчатую коробку скоростей для передачи вращения шпинделю от электродвигателя главного привода.
Изменение частоты вращения шпинделя достигается изменением частоты вращения двигателя и переключением зубчатых колес коробки скоростей.
Шпиндельное устройство монтируется в отдельном корпусе и состоит из двух шпинделей: горизонтального фрезерного шпинделя и расточного шпинделя, перемещающегося относительно фрезерного шпинделя в осевом направлении (ось Z).
Осевое перемещение расточного шпинделя осуществляется от высокомоментного электродвигателя через сильфонную беззазорную муфту и шарико-винтовую пару (ШВП). В подвижной части привода подачи располагается гидравлический механизм отжима инструмента. Зажим инструмента в шпинделе станка обеспечивается зажимным устройством фирмы BERG и осуществляется пакетом тарельчатых пружин. Отсчет положения перемещения шпинделя производится фотоимпульсным датчиком, соединенным через ременную передачу с винтом ШВП оси Z.

Опционально возможна установка шпинделей:
- с хвостовиком HSK100A и диаметром выдвижной части шпинделя 110 мм;
- с хвостовиком ISO 50 и диаметром выдвижной части шпинделя 130 мм;
-с хвостовиком HSK100A и диаметром выдвижной части шпинделя 130 мм

Инструментальный магазин

Система смены инструмента состоит из инструментального магазина, направляющих манипулятора и манипулятора.
Магазин инструментальный на 50 инструментов предназначен для размещения инструментов в соответствии с программой обработки детали.
На магазине монтируется механизм фиксации звена и механизм загрузки инструмента. Между магазином и зоной обслуживания станка, для предотвращения травмирования оператора, установлено ограждение.
В автоматическом режиме начало отсчёта - «0» гнезда магазина, наличие инструмента в гнезде магазина и выбор гнезда магазина, заданного программой, контролируются бесконтактными конечными выключателями.
Манипулятор предназначен для смены инструмента в шпинделе станка. Манипулятор устанавливается на ползушке, перемещающейся по направляющей манипулятора в горизонтальной плоскости от инструментального магазина к шпинделю и обратно

Система смены инструмента схематичное изображение
ЧПУ Балт-Систем NC-400S блок системы управления

Система управления

Станок оснащен системой ЧПУ Балт-СистемNC-400S которая отличается уникальным сочетанием многофункциональности, надежности и возможностью одновременной многоосевой обработки. Система имеет открытую архитектуру, что позволяет удовлетворять растущие требования потребителей путем встраивания дополнительных аппаратных и программных модулей.

Система позволяет работать с датчиками типа энкодер, резольвер и индуктосин.

Основные отличительные особенности системы:

  • Наличие дискретных входов и выходов;
  • Подготовка управляющих программ одновременно с выполнением цикла обработки детали;
  • Вывод информационных сообщений (ошибки при подготовке кадров, ошибки оператора, ошибки диагностики системы и станка);
  • Компенсация погрешности ходового винта и компенсация люфтов;
  • Программные ограничения;
  • Управление разгоном/торможением по линейному или экспоненциальному закону;
  • Электронный штурвал;
  • Диагностика при включении и во время работы;
  • Встроенный программируемый интерфейс логики станка;
  • Язык высокого уровня для программирования интерфейса логики станка;
  • Видеографика.

Дополнительная комплектация

ТЕХНИЧЕСКИЕ ХАРАКТЕРИСТИКИ В БАЗОВОМ ИСПОЛНЕНИИ

Характеристики устанавливаемого инструмента

Инструментальный конус                                                                                                                                                     ISO 50
Зажимной хвостовик                                                                                                                                                    DIN 69871A
Максимальная длина                                                                                                                                                            500 мм

Максимальный диаметр                                                                                                                                                      400 мм
Максимальная масса                                                                                                                                                                 25 кг

Рабочие и установочные перемещения

Наибольшее программируемое перемещение:
- по оси Х                                                                                                                                                                                2000 мм
- по оси Y                                                                                                                                                                                1600 мм
- по оси Z                                                                                                                                                                                  710 мм
- по оси W                                                                                                                                                                               1250 мм
- по оси B                                                                                                                                                                                       360°
- по оси C                                                                                                                                                                                       360°

Точность (повторяемость) двухстороннего позиционирования 

По оси Х                                                                                                                                                                              30(15) мкм
По оси Y                                                                                                                                                                              40(20) мкм
По оси Z                                                                                                                                                                              50(25) мкм
По оси W                                                                                                                                                                            40(20) мкм По оси B                                                                                                                                                                       25(12) угл. сек

Шпиндель

Диаметр выдвижной части шпинделя                                                                                                                             110 мм
Диапазон частот вращения                                                                                                                              10...2500 об/мин
Мощность привода                                                                                                                                                                 30 кВт
Наибольший крутящий момент                                                                                                                                      1420 Нм

Стол

Размер рабочей поверхности стола                                                                                                                    1400х1600 мм
Размер Т-образных пазов                                                                                                                                                      22 мм
Расстояние между пазами                                                                                                                                                   160 мм
Количество пазов                                                                                                                                                                      9 шт.
Диаметр центрального отверстия                                                                                                                                    100 мм
Грузоподъемность                                                                                                                                                                5000 кг

Система автоматической смены инструмента

Емкость инструментального магазина                                                                                                                              50 шт.
Максимальная суммарная масса инструмента                                                                                                             1000 кг
Время смены инструмента                                                                                                                                                    15 сек

КОМПЛЕКТ ПОСТАВКИ

Станок в базовом исполнении

  • Шпиндель ISO 50, D110мм, 2500 об./мин, 1420 Нм
  • Система управления станком с ЧПУ BaltSystem 400S
  • Система очистки инструментального конуса шпинделя сжатым воздухом при смене инструмента
  • Стол поворотный (ось С) 1400x1600 мм
  • Инструментальный магазин на 50 позиций
  • Гидростанция на 160 л
  • Станция СОЖ на 600 л, наружная подача в зону резания
  • 2 шнековых транспортера в зоне резания, ленточный транспортер и бак для стружки 
  • Комплект защиты направляющих и ШВП
  • Комплект сопроводительной и эксплуатационной документации на бумажном носителе
  • Упаковка стандартная (полиэтиленовый чехол)
  • Доставка автотранспортом до склада Заказчика
  • Пусконаладочные работы
  • Инструктаж персонала на 10 чел.
  • Базовая гарантия на 12 мес.
  • Консультации по условиям монтажа и режимам работы оборудования

Опциональное исполнение

  • Шпиндель HSK100A, D110мм, 2500 об./мин, 1420 Нм
  • Шпиндель ISO 50, D130мм, 2500 об./мин, 1420 Нм
  • Шпиндель HSK100A, D130мм, 2500 об./мин, 1420 Нм
  • Стол поворотный (ось С) 1250х1400 мм
  • Стол поворотный (ось С) 1100х1250 мм
  • Система подачи СОЖ через шпиндель 

Дополнительная комплектация

  • Вертикальная фрезерная головка ФГ25.03
  • Универсальная фрезерная головка ОФГ25.01
  • Съемная планшайба РС67
  • Система измерения инструмента Pioneer RP610T
  • Система измерения инструмента Hexagon RWT35.50
  • Система измерения детали Pioneer RPS-20
  • Система измерения детали Hexagon RWP20.50
  • Пистолет подачи СОЖ 

Услуги

  • Расширенная гарантия на срок до 24 мес.
  • Постпроцессор для NX
  • Кинематическая 3D модель с симуляцией обработки в NX
  • Кинематическая 3D модель с симуляцией обработки в VERICUT 

ОБРАТНАЯ СВЯЗЬ

Свяжитесь с нами по любым интересующим Вас вопросам по контактным данным ниже или с помощью формы обратной связи

Контактная информация

127018, Россия, г. Москва,
ул. Сущёвский Вал, д. 18
CRM-форма появится здесь